Property Features
Welwyn Hall Gardens, Welwyn, AL6 9LF
Contact Agent
Welwyn6a High Street
Welwyn
AL6 9EG
Tel: 01438 718877
info@bryanbishop.co.uk
About the Property
Summary:
Bryan Bishop and Partners are delighted to bring to the market this extremely attractive three bedroom, two bathroom family home in a tranquil residential location, yet just yards from the centre of Welwyn village. Presented in absolutely immaculate condition inside and out, this is a versatile property set within a small select development that has all of the environmental and cost benefits of a mid-terrace house but still enjoys plenty of living space, which includes a ground floor guest cloakroom, a lovely en suite shower room to the principle bedroom, a separate garage en bloc and a generous rear garden. Beautifully appointed and decorated throughout, this is a house ready to make your home with absolutely no effort required from you at all. Just move in and enjoy !
Accommodation:
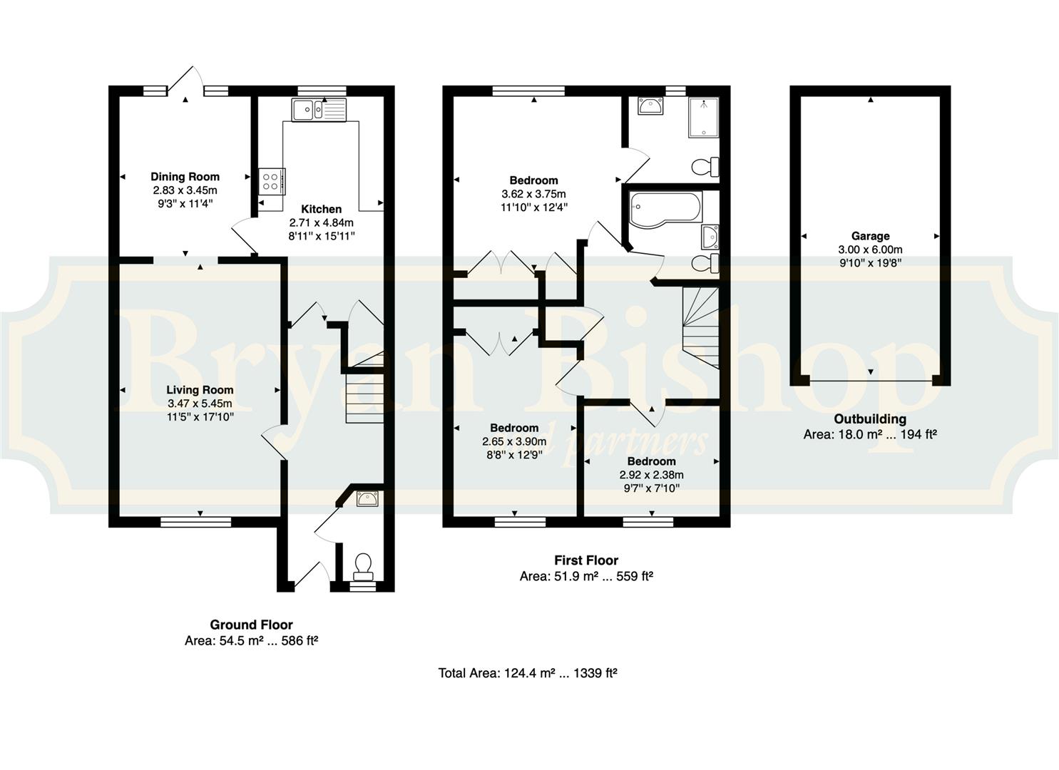
The pretty front door, inset with decorative stained glass windows, is set with a brick built tiled roof porch and opens into a generous entrance hall with a great view right though the house and out into the spacious rear garden. From the hallway doors open into the living room and kitchen, as well as the ideally placed guest cloakroom, whilst the stairs, complete with nicely carved spindles and shaped newel posts, turn elegantly as they climb up to the first floor. There is a fabulous attention to detail in the styling and decoration of this house which is clearly visible in every aspect of every room, and this begins in the entrance hall. Premium quality flooring sits perfectly beneath the two tone painted walls which are split by a dado rail that climbs the stairwell and extends fully around the hallway above. The ground floor layout ensures a free and easy flow around the house, with doors from the entrance hall into the living room and kitchen, but also an open plan connection from the living room into the dining room, that in turn directly links through to the kitchen. It’s a great layout both for hassle free day to day living and when entertaining guests.
Property Details
The front facing living room is a large room by any measure at eighteen feet long, but also enjoys nicely balanced proportions. Abundantly lit by a large window to the front aspect as well as from the dining room to the rear, there is an elegant dado rail and a superb ornate cornice, with a stylish modern fire surround housing a coal effect fire. The room is comfortably large enough for multiple sofas and chairs, as well as other occasional furniture if you wish, and gives you almost limitless options as to how to configure and furnish the space to best suit your family's needs.
A neat archway leads through to the adjoining dining room, which has direct access into the kitchen as well as a fully glazed door opening onto the rear patio flanked by generous windows either side. This is a lovely light, bright room just perfect for taking meals together as a family or with friends, with the seamless connection out into the garden really boosting its usability. It is another well proportioned room that would easily cope with a substantial dining suite as well as other cupboards and occasional tables.
The remainder of the rear of the house is taken up by the generous kitchen, which extends to an impressive sixteen feet in length. The ample space available has been intelligently used to great effect, with the attractive styling cue of the two tone hallway carried through into the kitchen which has light coloured wall units above darker base units, making the space appear even larger than it already is. The whole rear section of the room has the perimeter fully lined with a comprehensive array of fitted cupboards, creating a neat ergonomic space providing more than generous storage along with plenty of worktop area. Within the cabinets is a considerable collection of integrated appliances along with planned spaces for certain free standing items, such as an upright fridge/freezer and a washer/dryer.
Upstairs is a spacious hallway with a pretty banister overlooking the stairwell, from which doors lead into the three bedrooms and the family bathroom which boasts a 'P' shaped bath with a shower attachment and screen fitted. Two of the bedrooms are large doubles, both of which have built-in wardrobes, with the principal bedroom also having a luxury en suite shower room.
Exterior:
The house is part of a small, quality development of family homes with a large block paved area for parking, enjoying its own garage en bloc and a neat garden area to the front. To the rear a deep patio runs the full width of the house, linking via a short set of steps with lovely tiered flower beds either side up on to a terraced lawn area, which in turn opens to a fabulous raised deck at the far boundary that is just perfect for chilling as a family or for entertaining friends. The garden is fully enclosed and secure, so is ideal for pets and children, and offers a great combination of space to play as well as space to relax and dine outside.
Location:
This fabulous property enjoys an idyllic location within Welwyn Village, just a few yards from the high street, which has a thriving and bustling central area with a wide range of shops, pubs and restaurants as well as doctors and dentists. More extensive facilities are to be found in Welwyn Garden City, just 3 miles to the south. Welwyn North Station offers a fast and frequent service into London, getting you to Kings Cross in around 20 minutes. Junction 6 of the A1(M) is within one mile.
Buyers Information
In order to comply with the UK's Anti Money Laundering (AML) regulations, Bryan Bishop and Partners are required to confirm the identity of all prospective buyers once an offer being accepted. We use a third party, Identity Verification System to do so and there is a nominal charge of £48 (per person) including VAT for this service.

















