Property Features
The Walled Garden, Tewin Water, Welwyn, AL6 0BZ
Contact Agent
Welwyn6a High Street
Welwyn
AL6 9EG
Tel: 01438 718877
info@bryanbishop.co.uk
About the Property
Summary:
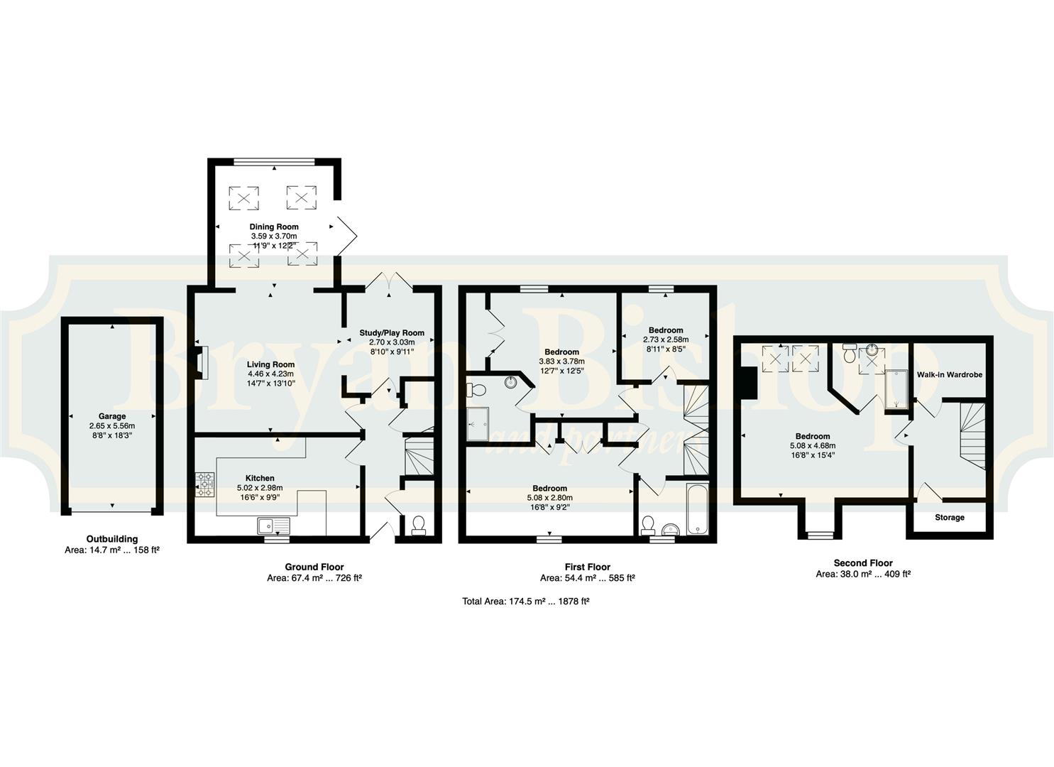
Bryan Bishop and Partners are delighted to bring to the market this superb four bedroom, three bathroom family home presented in immaculate decorative order throughout. Set in the idyllic countryside of Tewin Water, within a select, high grade development by Charles Church, this deceptively spacious home enjoys a completely rural position, yet is just a few minutes from the popular and vibrant villages of Tewin and Welwyn. Arranged over three floors, the layout of this attractive property is intelligently designed to allow you great flexibility in how you use the rooms to best meet your family’s needs, along with plenty of parking, a separate garage and a neat rear garden that opens directly out into the extensive communal grounds that lead to the banks of the gently flowing river Mimram.
Property Details
Accommodation:
The neat front garden is planted with a pleasant variety of shrubs and bushes set behind a well maintained low level hedge, with a block paved pathway leading up to the half glazed front door set beneath a protective tiled porch. Inside you are greeted by a pretty entrance hall with doors off to the kitchen, living room, study/office/playroom, a conveniently placed ground floor guest cloakroom and a generous understairs cupboard. The layout of the house allows a fabulous view along the whole length of the entrance hall, into the study/office/playroom and out through the glazed double doors into the garden beyond.
The front facing kitchen is a premium quality bespoke installation presented in absolutely immaculate condition, and abundantly equipped with a full complement of floor and wall mounted fitted cupboards providing more than ample storage space, along with a comprehensive range of integrated appliances with a designated space within the design for a free standing double fridge freezer. The spacious worktop stretches around the perimeter and extends out into a neat island, providing a convenient breakfast bar that sits four/five people. The living room is a really good size and enjoys a nicely balanced shape, endowing it with a high level of flexibility as to how you configure and furnish the generous space available, and is flooded with light from the openly connected dining room to the rear. Comfortably large enough for multiple sofas and chairs, it boasts a wonderful feature fireplace at the centre of the outside wall occupied by a modern log burner, with bespoke fitted cupboards and shelving built into the recesses on either side. This is a great room in which to spend time together as a family and for entertaining guests, with an easy flow between it, the adjacent connecting rooms and the entrance hall.
The adjoining dining room is quite simply stunning, with a full wall of glass to the rear that allows the daylight and the country views to pour in unhindered as it stretches up into the open pitch of the gable end. There is a direct connection out onto the generous patio through a three panel set of bi-fold doors to the side, and no fewer than four large Velux windows set into the ceiling. Combining the enormous glass area with the south-west facing aspect of the room means that describing the space as being flooded in natural daylight feels like a ridiculous understatement. This really is a room that celebrates all of the benefits of a conservatory without any of the drawbacks, it's an absolute triumph of design.
The adjoining study/office/playroom is another room with direct access out into the garden through a pair of glazed French doors, keeping it light and bright throughout the day. It is a good size and would easily accept multiple work stations and ancillary storage, making it a comprehensive work from home facility if needed. Should there not be a need for a home office, or if the office could fit into one of the four bedrooms upstairs, it would also make a fabulous playroom, games room, music room, gym or arts/crafts studio.
The first floor comprises three bedrooms, and the stunning family bathroom which has a bath with shower and screen fitted. Two of the bedrooms are comfortably doubles in size and boast fitted wardrobes, with one of them also having a lovely en-suite shower room. In fact all of the bathrooms in this exceptionally well appointed home are worthy of note. Each one has been meticulously crafted and designed to incorporate premium fixtures and fittings of the finest quality, further enhanced by a skilfully curated blend of shaped floor and wall tiles displaying both impeccable taste and unimpeachable craftsmanship in their installation. Every one of them is a joy to behold.
The stairs then continue up to the superb second floor bedroom suite. This features a large bedroom with a dormer window to the front and multiple skylights to the rear, and an en-suite shower room with its own skylight. Additionally there are two eaves storage areas, with one of them astutely converted to a walk-in wardrobe.
Exterior:
The houses are arranged around an attractive private courtyard with plenty of parking for residents and guests at its centre, along with a private garage en-bloc. At the rear there is a fabulous paved patio running around the outside of the dining room that links the access points from the house via the dining room and study/office/playroom with a very elegant ornamental pond integrated within it just outside the dining room windows, expanding into a stylish area to the side that is perfect for relaxing and dining al fresco. A neat paved pathway curves away across the garden, which is designed in a Mediterranean style, with open planting on either side and a neat decking area set into the far corner. There is a neatly clipped hedge at the far boundary inset with a gate, beyond which are the open communal grounds that provide a lovely natural area that leads down to the meandering river Mimram. With a lovely open aspect and the extensive communal grounds easily accessible, this house enjoys a unique situation that is very hard to beat.
Location:
This lovely home is located within a quiet residential development of just a few exclusive residences on the outskirts of the ever popular village of Digswell. Welwyn North Station is within a 15 minute walk, from where trains reach London King's Cross in just over 19 minutes. The village of Digswell also benefits from local shops, St Johns primary school, the Cowper Arms pub, a tennis club and various other clubs and societies. Welwyn Garden City is a couple of miles away offering a wide and varied range of amenities. You can also walk for miles through the surrounding countryside along the many footpaths and bridleways. Within the area are many state and private schools including Sherrardswood, Haileybury, Duncombe and Heath Mount. The A1(M) links to the M25 and both Luton and Stanstead Airports are within a 30 to 40 minute drive.
Buyers Information
In order to comply with the UK's Anti Money Laundering (AML) regulations, Bryan Bishop and Partners are required to confirm the identity of all prospective buyers once an offer being accepted. We use a third party, Identity Verification System to do so and there is a nominal charge of £48 (per person) including VAT for this service.

































