Property Features
Stuart Road, Welwyn, AL6 9JN
Contact Agent
Welwyn6a High Street
Welwyn
AL6 9EG
Tel: 01438 718877
info@bryanbishop.co.uk
About the Property
SOLD via our discreet marketing service, if you are thinking of buying in the area, make sure you register your interest with Bryan Bishop and Partners. We have similar properties for sale that are not advertised online.
Summary:
Bryan Bishop and Partners are delighted to bring to the market this charming three bedroom family home set in a quiet residential road just minutes from the vibrant and well supported village of Welwyn. The property boasts a very large living/dining room, a lovely timber framed conservatory and a very generously sized rear garden. It would benefit from a “light touch” refurbishment internally to bring it bang up to date but all of the key elements are there in abundance, such as a fabulous layout, good sized rooms on both floors and plenty of exterior space, not to mention the ideal location. Priced accordingly, and with abundant potential to extend, subject to the usual consents, this lovely house is a perfect opportunity to make the family home you have always wanted.
Accommodation:
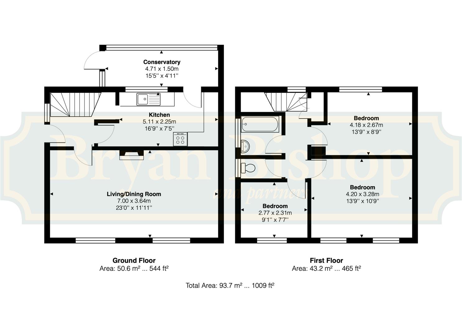
The front door features a decorative obscured glass panel, repeated in the adjacent window, which lets in plenty of light, keeping the entrance hall light and bright throughout the day. From the hallway, which also has a neat storage cupboard built in under the stairwell, doors open into the kitchen and the spacious living/dining room.
The kitchen is a good size, extending to nearly seventeen feet in length, and is bathed in natural light through the large rear window and glazed panel door that open out into the conservatory. Being fitted with a good range of wall and floor mounted cupboards endows it with ample storage and there are the necessary spaces beneath the worktops for installing the usual appliances such as a dishwasher, cooker and fridge.
- Sold by Bryan Bishop and Partners
Property Details
Extending across the rear of the house is the wonderful conservatory. This is a traditional timber framed structure perfectly positioned for soaking up the sun, that is currently giving great additional service as a utility room/storage area. The conservatory links seamlessly out into the rear garden via a fully glazed door at one end.
Occupying the main part of the ground floor, extending the full width of the house, is the fabulous living/dining room. This is a large room by any measure, being some twenty-three feet in length and is easily spacious enough for a substantial set of lounge furniture as well as a good sized dining suite. The room enjoys two large front facing windows, which allow the light to pour in, and also adds to the overall flexibility of this property. It really does offer multiple opportunities to expand the living space to the side and the rear, enabling you to remodel, enhance and modernise the interior on both floors without compromising the generous gardens that will still remain.
Upstairs are three bedrooms, with two of them being large doubles in size. The bathroom features a bath with shower attachment and screen, with the toilet being conveniently located in a separate adjacent room, a clever and useful arrangement for a busy family.
Exterior:
The lovely open aspect to the front really emphasises how pretty the house is, with an attractive wrap-around garden split into two lawn areas by the paved pathway leading up to the entrance door. Surrounding the garden is a fabulous border exhibiting a varied and interesting display of mature plants, bushes and shrubs which serve admirably to boost the kerb appeal even further. A lockable side gate gives useful direct pedestrian access into the rear garden, which seems to stretch away before you into the far distance. A large paved patio runs across the rear of the house and on round the conservatory. Beyond that is a large lawn leading to a greenhouse and garden shed, both of which are nicely screened by a plant covered trellis fence. All around the boundary are an abundant array of lovely plants interspersed with small specimen trees. This is a lovely garden which has clearly been carefully planned and planted and lovingly looked after - a real joy to be cherished. The garden is secure and fully enclosed, so is ideal for pets and children.
Location:
This charming property is ideally located in a quiet residential area just a few minutes from the centre of Welwyn Village, which has a thriving and bustling central area with a wide range of shops, pubs and restaurants as well as doctors and dentists. More extensive facilities are to be found in Welwyn Garden City, just 3 miles to the south. Welwyn North Station offers a fast and frequent service into London, getting you to Kings Cross in around 20 minutes. Junction 6 of the A1(M) is within one mile.















