Property Features
Robbery Bottom Lane, Welwyn, AL6 0UW
Contact Agent
Welwyn6a High Street
Welwyn
AL6 9EG
Tel: 01438 718877
info@bryanbishop.co.uk
About the Property
Summary:
Believed to date from the 1950s, this home is tucked away on a peaceful country lane, just a short stroll from local shops, amenities, and picturesque rolling countryside. The sought-after village of Welwyn lies less than two miles distant, with convenient rail links available at Welwyn North, Welwyn Garden City, and Knebworth. Extended, updated, and thoughtfully modernised over the years, the property now offers spacious, well-balanced, and versatile accommodation arranged across two floors.
Property Details
Accommodation:
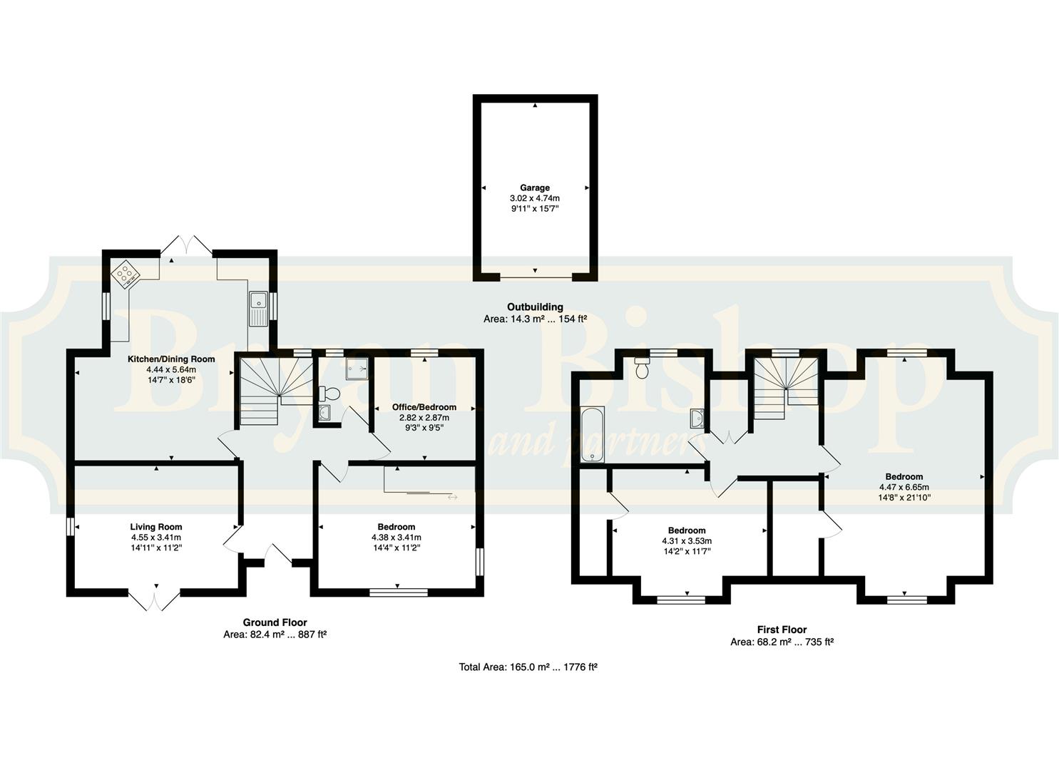
As you step inside, you’re welcomed by a generous entrance hall that leads into a cosy, inviting living room. Just beyond this, at the rear of the property, sits the stylish kitchen/diner, a practical yet elegant space designed for everyday living and entertaining. Its modern layout and spacious feel make it the true centre of the home, complete with French doors out onto the rear garden. Completing the ground-floor accommodation are two well-proportioned double bedrooms, both served by a contemporary shower room.
Upstairs offers an unexpected delight, with an abundance of space and natural light throughout. A generous landing leads to the principle bedroom, an exceptionally spacious double featuring a walk-in wardrobe and windows to both the front and rear. There is also another well-proportioned double bedroom overlooking the front of the property. Completing this floor and serving the bedrooms, is a large and luxurious bathroom with views over the rear garden.
Exterior:
The exterior of the home is just as well thought out as its interior. Set well back on its plot, it enjoys a sense of privacy, creating a calm and secluded retreat. At the front of the property, there is a generous amount parking, complemented by a double garage for secure storage. The grounds are neatly maintained, and the property’s elevated position provides sweeping views across the surrounding landscape.
Location:
Robbery Bottom Lane sits in a sought-after part of Oaklands, surrounded by attractive countryside and scenic walking routes. A handy parade of local shops is just moments away, along with easy access to a well-regarded JMI school and a popular pub and restaurant. Both Welwyn Garden City and Welwyn Village are only a short drive from the area, offering excellent transport connections via the A1(M) and mainline rail services to London from Digswell, Welwyn Garden City, and Knebworth.
Buyers Information:
In order to comply with the UK's Anti Money Laundering (AML) regulations, Bryan Bishop and Partners are required to confirm the identity of all prospective buyers once an offer being accepted. We use a third party, Identity Verification System to do so and there is a nominal charge of £48 (per person) including VAT for this service.
























