Property Features
Marsden Road, Welwyn Garden City, AL8 6XZ
Contact Agent
Welwyn6a High Street
Welwyn
AL6 9EG
Tel: 01438 718877
info@bryanbishop.co.uk
About the Property
Summary:
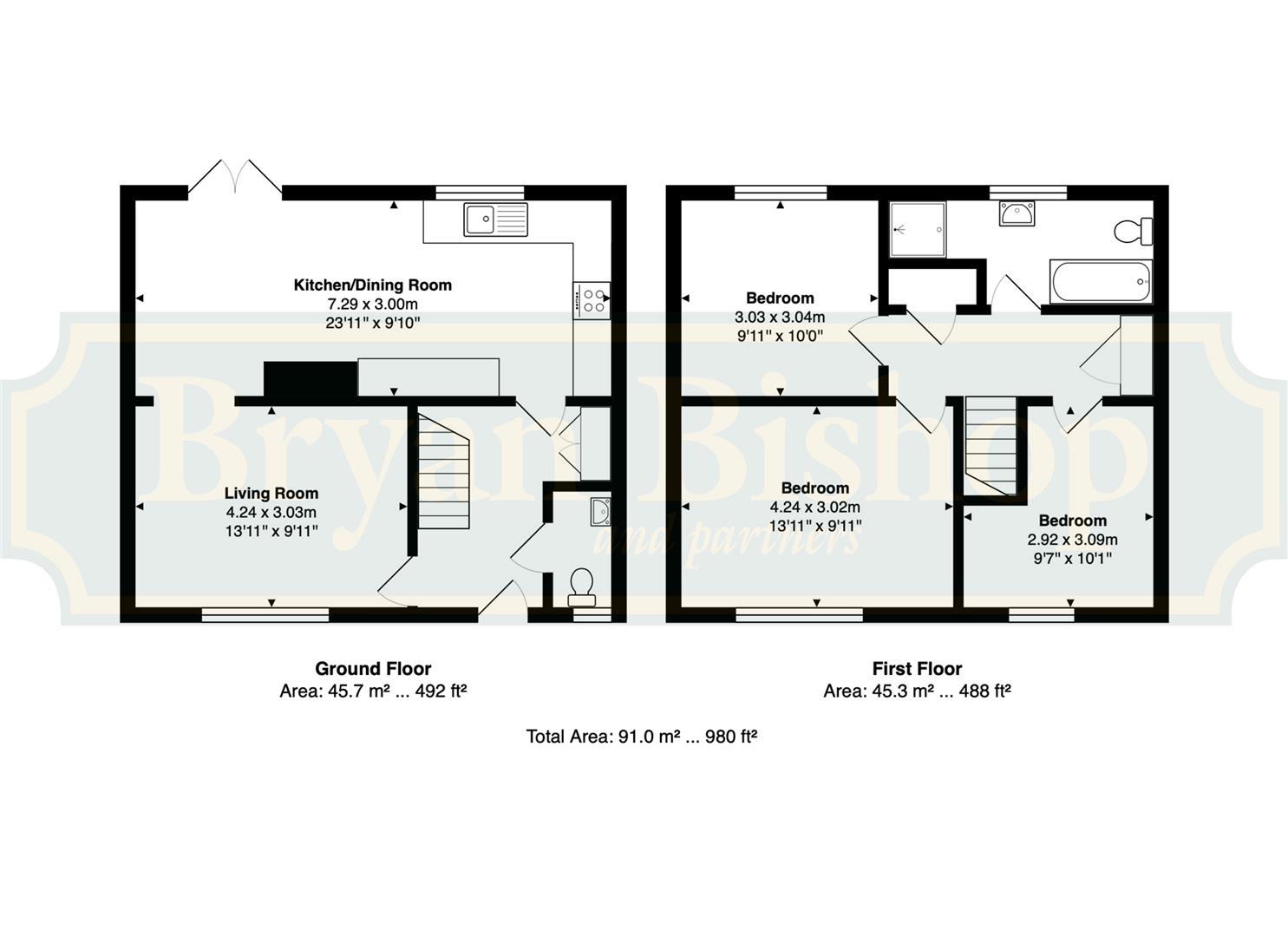
Bryan Bishop and Partners are delighted to bring to the market this lovely three bedroom end-of-terrace family home located in the popular west side of Welwyn Garden City. The spacious ground floor benefits from an ideally placed guest cloakroom and a free flowing semi-open plan arrangement that really maximises the already generous space available, and the large kitchen/dining room connects seamlessly out into the lovely rear garden through glazed double doors. This house is in immaculate condition inside and out, clearly benefiting from owners who have lavished great care and attention on both the decoration and maintenance and is ready for you to just move in and enjoy. The primary impressions of this super home are light and space, with every room bathed in abundant natural daylight thanks to the large picture windows throughout the property.
Accommodation:
The attractive front door, with inset patterned glass panels and matching side windows, welcomes you into a light, bright entrance hall of a good size. Here there is a large built-inĀ cupboard with coat/shoe storage, as well as, an additional understairs storage cupboard. From the hallway doors lead into the living room, kitchen/dining room and the conveniently positioned guest cloakroom.
The front facing living room is a well balanced rectangular shape offering plenty of scope for you to configure and furnish it in the way that suits you best, and is comfortably large enough for multiple sofas and chairs The large window looking out over the front garden keeps it well lit, and the open archway through into the kitchen/dining room is a practical as well as attractive feature, enabling easy movement around the whole of the ground floor, as well as an uninterrupted flow of natural light between the rooms.
- Sold by Bryan Bishop and Partners
- West-side of Welwyn Garden City location
- Quiet residential road
- Immaculate decorative order
- Large kitchen/dining room
- Three bedrooms
- Attractive rear garden
- End of terrace family home
Property Details
The kitchen/dining room takes up the whole of the rear of the house and is a wonderful open space, basking in the light pouring in through the French doors and additional window overlooking the south-west facing garden. Again this room supports the easy flow around the house with the archway from the living room and a separate door out into the entrance hall, making this a wonderful home for a busy family. One end of the room is allocated to the fitted kitchen area, which incorporates a comprehensive array of wall and floor mounted cupboards providing substantial storage space. The kitchen is in immaculate condition, resplendent in gloss white, complete with under-cupboard lighting illuminating the smart white brick-style tiles filling the space between the wall units and the contrasting worktops. All the usual appliances you may need are integrated into the cabinets, along with allocated zones for free standing items such as a washing machine and tumble dryer, still leaving more than ample floor space for larger items such as a double fronted fridge/freezer. The room benefits from newly installed underfloor heating (installed in 2024). The remainder of the room is left open plan for you to furnish and use as best suits your family's needs, and is comfortably large enough for a substantial dining table and other occasional furniture, making it a fabulous place for family meals and dinner parties alongside the glass doors that open onto the rear patio.
The stairs climb up through the middle of the house and are fitted with fully enclosed banisters, giving often overlooked but nonetheless valuable piece of mind if there are toddlers and small children in the family. Upstairs the hallway has two large fitted cupboards, one of which is an airing cupboard. The hallway opens into the three bedrooms and the family bathroom, which is graced with a separate bath and shower. Two of the bedrooms are comfortably large enough to be considered doubles.
Exterior:
The house is set on a residential road with plenty of kerbside parking, and is set back from the road behind its own generous front garden. A good size lawn flanks the path that leads up to the house, surrounded by mature hedges around the boundary. Being an end-of-terrace means that the property has separate access via a secure gated side walkway through to the rear garden. The rear garden is a delight, with a substantial patio running the full width of the house, edged by lovely flower borders which extend around the boundary with a generous lawn at the centre. Part way along the garden is a lovely archway through another hedge into a secret garden area with a paved pathway running through an area of bark chippings to a large garden shed. This is a wonderful garden, fully secure and enclosed so ideal for children and pets, south west facing, and intelligently laid out to get the best of the sun through the day, making it a super place for relaxing together as a family or for welcoming guests. It is also large enough so that if you wanted to extend the house at the rear, it would be eminently feasible without taking up too much of the outdoor space.
Location:
This property is perfectly located in the preferred west side of the ever popular Welwyn Garden City, within a few minutes of the city centre with its extensive shopping areas, restaurants, bars and mainline railway station, from which regular and frequent services run north and south. London is an easy commute, with Kings Cross station just 25 minutes away. It also benefits from being close to all other local amenities including the Gosling Sports Centre, doctors, dentists and renowned schooling for all ages. Despite its residential location it remains within easy access of the motorway network via the A1(M).
Buyers Information
In order to comply with the UK's Anti Money Laundering (AML) regulations, Bryan Bishop and Partners are required to confirm the identity of all prospective buyers once an offer being accepted. We use a third party, Identity Verification System to do so and there is a nominal charge of £48 (per person) including VAT for this service.





















