Property Features
Handside Lane, Welwyn Garden City, AL8 6TA
Contact Agent
Welwyn6a High Street
Welwyn
AL6 9EG
Tel: 01438 718877
info@bryanbishop.co.uk
About the Property
Summary:
Bryan Bishop and Partners are delighted to bring to the market this exceptional four bedroom, two bathroom family home located along one of the most highly desirable residential roads in Welwyn Garden City. The current owners have enjoyed living here for over fifteen years and during that time have meticulously maintained and improved the property, including a substantial refurbishment that incorporated an impressive two storey extension in 2016. The end result is an immaculately presented house and gardens that are absolutely bursting with practical, modern touches as well as a fully documented history of a detailed maintenance programme that has been followed without deviation and regardless of its cost.
The current owners have implemented a full electrical rewire, and installed a new central heating boiler, radiators and pressurised hot water tank; a water softener; underfloor heating in the kitchen, utility/laundry room and both of the bathrooms; dual power heated towel rails in both of the bathrooms; heated towel rail in the guest cloakroom; an EV charging point; RCD protected power in the large shed; a satellite dish wired into all of the bedrooms and the kitchen/dining room, family room and living room; a fully boarded and insulated loft space with a two Velux roof lights, as well as many other valuable features covered in the room descriptions. As you can clearly see this is definitely a home you can confidently buy with your head as well as your heart.
Property Details
Accommodation:
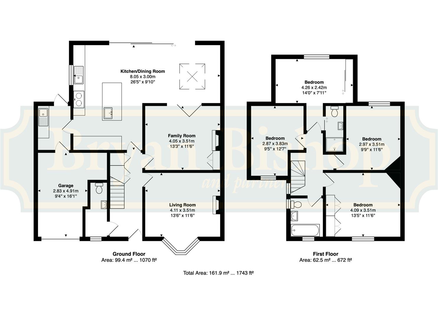
This is a very attractive house, built in classic red brick and with a pretty part-glazed front door set within a decorative surround that includes a protective canopy neatly integrated into the design. Inside is a welcoming entrance hall with a beautiful stripped wooden floor and an elegant staircase climbing up to the galleried hallway above. From the entrance hall doors open into the conveniently placed guest cloakroom, living room and family room, as well as a number of clever cupboards that make good use of the space beneath the stairs. The entrance hall has plenty of natural daylight thanks to the part glazed front door and a well located window above the stairwell and enjoys a terrific elongated view right back through the kitchen/dining room at the far end and out into the lovely garden beyond.
The living room is absolutely charming, with a nice balance to the generous space that really helps with layout and furnishing choice. The bay window overlooking the front garden ensures the room stays light and bright throughout the day and has been fitted with a bespoke banquette seat, which is a super addition to the room. Further bespoke carpentry work is on display with two cupboards built into the gracefully arched alcoves either side of the gloriously intricate central working fireplace, with the right hand cabinet fully prepared to conceal all the necessary AV and Wi-Fi cables.
To the rear of the living room is the fabulous family room, another room that enjoys a good size and very usable shape. A cupboard built into the alcove on one side of the central log burner adds practical storage space to the room, which has abundant light cascading in through a set of three panel bi-fold doors that open into the adjoining dining area. This room really underpins the flexible nature of this intelligently designed house, and is able to be whatever you want it to be, certainly performing admirably as a family room/games room/music room in its current format.
The very large kitchen/dining room forms a substantial ‘L’ shape across the rear of the house and enjoys a really nice easy flow around and through the different spaces, connecting directly out into the entrance hall and rear garden, as well as through to the family room and separately out into the rear garden via the utility/laundry room to the side. It is a large room by any assessment at well over twenty-six feet wide, but the carefully considered layout makes the whole space completely usable on a day to day basis. This room absolutely exemplifies the often overstated phrase “bringing the outside in” as it enjoys what can only be considered to be a full wall of glass across the rear which uses an innovative system of sliding glass doors to open the whole room out onto the patio. The effect is just as fabulous when the doors are closed, as the sunlight streams in and the lovely garden views fill the room, and of course the natural daylight is boosted even further by the roof lantern situated above the dining area and a further window within the kitchen. The working kitchen has been cleverly placed into a natural recess at one end of the room, allowing a comprehensive array of bespoke wall and floor mounted cabinets to line the perimeter walls, ably supplemented by a unique folding larder unit and a superb central island complete with an additional sink, very cool pop up tower with USB and electric sockets and a neatly incorporated breakfast bar. There is a good selection of premium brand appliances integrated within the cupboards, along with designated spaces allocated for larger free standing items such as a double-width fridge/freezer plumbed for a water cooler/ice maker, integrated wine fridge and a space for a two oven AGA/double width range style cooker. The remainder of the room is left as open floor area for you to lay out and furnish to best suit your needs. Certainly it would easily take a substantial dining table and chairs and will readily, as it does now for the current owners, multi-task as a dining room and summer lounge, still leaving abundant free space to ensure an easy flow in, around and through the room, making it a real pleasure for everyday family life and an absolute joy when entertaining guests.
From the corner of the kitchen a door leads through into a fully fitted utility/laundry room which usefully has doors accessing the rear garden and internally into the integral garage.
Upstairs a nicely lit hallway, attractively galleried over the staircase, leads to each of the four bedrooms and the family bathroom. All of the bedrooms are comfortably doubles in size, with two of them enjoying fitted wardrobes as well as one of them boasting an en-suite shower room. The family bathroom has a bath with shower and screen fitted above it.
Exterior:
Mature, well maintained hedges surround the front garden, which has a paved driveway that leads up to the garage, which is fitted with an electric roller door, before expanding across the front of the house. The remainder of the frontage is taken up by a smart lawn, and could easily be remodelled to provide more off-street parking if so desired. There is useful separate gated access through to the rear garden which is fully enclosed and secure and so ideal for pets and children. The private rear garden is absolutely wonderful, with a very large paved patio stretching the full width of the house to give maximum benefit to the expansive open connection into the kitchen/dining room. The patio is more than capable of accepting multiple sets of outdoor seating and dining furniture, still leaving plenty of space for socialising, and offers a perfect view along the length of the generous garden with a lovely open aspect all around it. The garden has been skilfully landscaped to provide interesting shapes and extended flower borders, with a charming stepping stone path that leads your eye through the middle to the birch, copper beach and apple trees beyond, with the far boundary delightfully punctuated by a cute painted summerhouse. In the far corner is a much larger than average shed, complete with its own circuit board and lighting, making it useful as a storage facility and also an active workshop.
Location:
This property is perfectly located on the extremely desirable west side of Welwyn Garden City, within easy reach of the city centre with its extensive shopping areas, restaurants, bars and mainline railway station, from which regular and frequent services run north and south. London is an easy commute, with Kings Cross station just 25 minutes away. It also benefits from being close to all other local amenities including the Gosling Sports Centre, doctors, dentists and renowned schooling for all ages. Despite its residential location it remains within easy access of the motorway network via the A1(M).
Buyers Information
In order to comply with the UK's Anti Money Laundering (AML) regulations, Bryan Bishop and Partners are required to confirm the identity of all prospective buyers once an offer being accepted. We use a third party, Identity Verification System to do so and there is a nominal charge of £48 (per person) including VAT for this service.




























