Property Features
Drivers End, Codicote, SG4 8TR
Contact Agent
Welwyn6a High Street
Welwyn
AL6 9EG
Tel: 01438 718877
info@bryanbishop.co.uk
About the Property
Summary:
Bryan Bishop and Partners are delighted to bring to the market this fabulous five bedroom, two bathroom family home set in the glorious Hertfordshire countryside close to Knebworth House. Located between the vibrant villages of Codicote and Knebworth, this attractive country house has substantial gardens and a superb rural location, yet is just a few minutes from the county’s A road network and is an easy commute by fast mainline train into central London. The ground floor living space is very large indeed, yet has nicely balanced proportions and abundant charm, warmth and character throughout.
Accommodation:
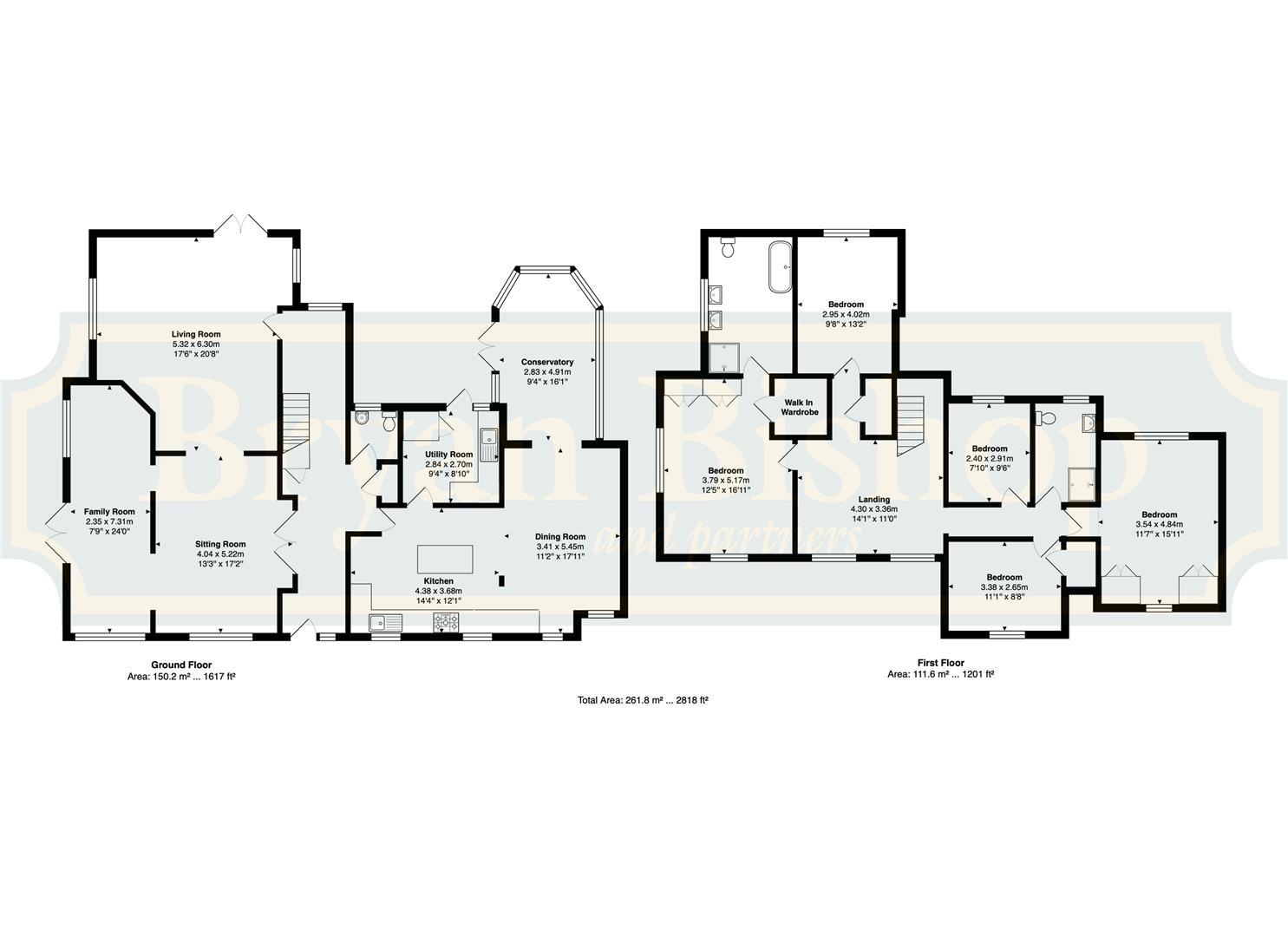
This is a particularly pretty house, and that starts at your very first view of the frontage which has a wonderful country cottage appeal to it, with diagonal leaded windows and a half timbered upper floor. The traditional front door is found at the top of two curved steps, set beneath a fabulous tiled roof porch, and welcomes you into a generous, entrance hall that extends the full depth of the house, nicely lit by windows to the front and rear, as well as two large windows on the upper landing overlooking the galleried stairwell. From the entrance hall doors lead into the front facing kitchen, a well placed guest cloakroom and the living room at the rear, whilst double doors open into the sitting room at the front.
- Sold by Bryan Bishop and Partners
Property Details
The living room, family room and sitting room occupy one wing of the house and are all conjoined in an open plan arrangement that makes for a fabulous free flowing suite of rooms, a real asset during day to day living, and an absolute joy when entertaining friends and family. This house presents an incredible level of flexibility as to how the space is used to best suit your needs, and this trio of rooms absolutely epitomise that ability, with the open connection between them making them all completely interchangeable and each of them being spacious enough to multi task as a formal dining room as well as accepting casual seating if so desired, with the superb conservatory offering even more adaptable space.
From the entrance hall double doors open onto two curved steps that lead down into the sitting room, which is flooded with light from the large front facing window, as well as the light flowing in unhindered from the adjoining family room and living room.
Occupying the front corner of the house, and linking through two separate openings from the sitting room, is the family room, a fabulous, light, bright room with substantial windows to the front and side aspects as well as glazed double doors that open into the capacious grounds to the side of the house.
The rear corner of the house is taken by the living room, again abundantly lit by two windows set into two different aspects along with a set of glazed double doors opening into the rear garden. The living room enjoys a superb brick built hearth set into one corner, which provides a dramatic focal point together with the free standing traditional log burner topped by a black flue rising dramatically up through the ceiling. Again, this room has a wonderful free flow in and around it, with open access from the sitting room, double doors out into the rear garden and a single door into the rear of the entrance hall.
The fabulous kitchen occupies the front of the house, enjoying the bountiful light that flows in through the three front facing windows, along with the further front window in the adjoining dining room. The kitchen benefits from a comprehensive array of wall and floor mounted fitted cupboards that provide more than ample storage and plenty of food preparation worktop area, further enhanced by a lovely central island. A full complement of integrated appliances inhabit the cupboards, along with a stunning two oven AGA and space for a full height fridge freezer which is plumbed in for a water cooler/ice maker. To the rear of the kitchen is a generous utility/laundry room which has direct access out into the garden through a smart, part-glazed stable door.
Adjoining the kitchen, and fully connected to it, is the dining/breakfast room, currently being used as a day lounge to great effect. This is another of the many examples of this house's adaptability, linking openly as it does with the beautiful conservatory, making these two rooms also fully interchangeable, even season by season if you wish to.
The conservatory is an all year round usable room, being a premium quality installation with heating, light and power installed. Roof vents and opening windows allow full temperature management, whilst double doors open into the rear garden for easy access in and out. It is a substantial space and would easily cope with a generous dining suite as well as casual seating, providing a lovely place to spend summer afternoons with a good book as well as a superb dining experience for you and your guests.
Upstairs is a spacious landing, well lit by two windows to the front, which directly serves two of the bedrooms, with the other three bedrooms and the family shower room along a hallway running through the house. Four of the five bedrooms are at least doubles in size, with the fifth bedroom currently being put to excellent use as a comprehensive home office complete with a built in desk and generous storage. The main bedroom enjoys a walk-in wardrobe and a substantial en suite bathroom with twin sinks, as well as a separate free standing bath and shower.
Exterior:
To the front is a large open area of gravelled driveway and parking space set behind a substantial, nicely shaped hedge running along the front boundary and then turning back to the house. The balance of the frontage is made up of lawn with a pretty central flower bed and other bushes and specimen trees. To the side of the house there is separate gated access into the generous rear gardens, which are made up of a substantial area of grass to the side of the house and more formal gardens to the rear. A sweeping paved patio flows fully around the rear of the house, connecting the various access points in the conservatory, utility/laundry room and living room, providing plenty of space to relax and enjoy the garden, which is a wonderful blend of lawn, pathways and shaped flower beds full of a huge variety of planting to bring shape, texture and colour throughout the year. In the rear corner is a working area with raised vegetable beds, two good sized sheds and an open fronted barn.
Location:
This charming cottage is in a wonderful rural setting between the popular villages of Codicote and Knebworth, very close to the stunning Knebworth Park with its stately home, gardens and deer park. This is an ideal location for those who appreciate living within glorious countryside, yet enjoy having the convenience of village amenities nearby. Knebworth has been famously associated with numerous major open-air concerts, festivals and fairs, held in the grounds of Knebworth House. Both villages have thriving high streets with a range of shops, pubs,restaurants and cafés, as well as a number of highly regarded local schools nearby. Transport links are excellent, with Welwyn North, Knebworth, and Stevenage train stations all within a 15 minute radius, Hertford is easily reachable by car, with the A1(m) just a few miles away.
Buyers Information
In order to comply with the UK's Anti Money Laundering (AML) regulations, Bryan Bishop and Partners are required to confirm the identity of all prospective buyers once an offer being accepted. We use a third party, Identity Verification System to do so and there is a nominal charge of £48 (per person) including VAT for this service.





























