Property Features
Cherry Croft, Welwyn Garden City, AL8 7QU
Contact Agent
Welwyn6a High Street
Welwyn
AL6 9EG
Tel: 01438 718877
info@bryanbishop.co.uk
About the Property
Summary:
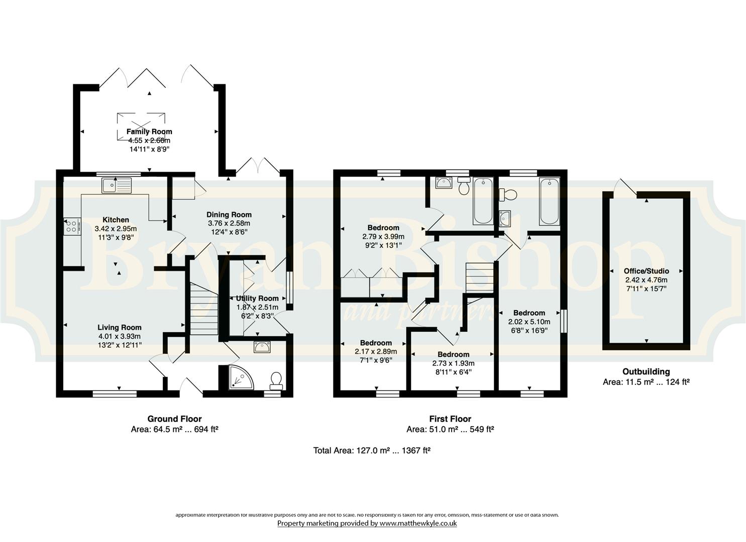
Bryan Bishop and Partners are delighted to bring to the market this fantastic four bedroom, three bathroom family home on the highly regarded north-west side of the ever popular Welwyn Garden City. Positioned on a quiet residential cul-de-sac in a sparsely populated part of the city, the property is within easy reach of the shopping and business districts yet also near the cricket club, Digswell lake and the wonderful surrounding Hertfordshire countryside. This remarkable house has been the recent subject of a comprehensive, no-expense-spared refurbishment, extension and upgrade and is presented in immaculate condition inside and out, displaying all the modern conveniences any family may need, including bespoke internal adjustable shutters to all of the windows, solar panels on both roof slopes, a modern intruder alarm, air conditioning to all of the bedrooms, ingenious design solutions using mezzanine sleeping platforms in two of the bedrooms, a wonderful brick built office/studio accessed from the rear garden and stunning landscaping to the front and rear gardens that provides attractive, practical, low maintenance outside spaces. This is an incredibly versatile house with a spacious and skilfully designed layout that incorporates multiple separate living rooms as well as a useful ground floor shower room that doubles up neatly as a well placed guest cloakroom. All of the work has been completed to the very highest standards, with every detail meticulously planned, making this property absolutely ready for you to move in and enjoy hassle free for many years to come.
Accommodation:
The pretty front door, with an attractive shaped leaded light window, opens into a smart entrance hall, which leads into the large living room on one side, and into the ground floor shower room beyond the staircase on the other.
Property Details
The living room is a good size and a nicely balanced virtually square shape, allowing it to be furnished in a variety of ways to suit your needs. The room is elegantly designed, with a modern flame effect fire set into one feature wall and a number of stylish recesses into the wall opposite. Comfortably large enough for multiple sofas and chairs, the room is kept light and bright throughout the day thanks to the large front facing window and the open plan arched connection with the rear facing kitchen.
The kitchen is cool and chic, with a comprehensive array of wall and floor mounted cupboards finished in matt grey lining the perimeter, ensuring you will never run low on storage space. Under-cabinet lighting illuminates the bright white worktops, whilst a full complement of premium brand appliances are integrated within the units. This really is a kitchen that is full of style and practicality in equal measure, topped off by an island helping to delineate the space from the adjacent living room that offers more storage cupboards beneath a neat breakfast bar.
Beyond a fully glazed door from the kitchen is the smart dining room, featuring a clever ceiling design with concealed lighting that brings some real architectural flair to the space, further enhanced by the stunning bespoke window shutters that grace the fully glazed doors opening out onto the rear terrace.
Accessed from the corner of the dining room is a large utility/laundry room, comprehensively fitted out to accommodate multiple washing machines and tumble dryers, with a side facing window and external door.
Extending across the back of the house, accessed down a few steps from the dining room, is a superb family room that is absolutely flooded with natural light thanks to the full width folding glass doors that occupy the whole of the rear wall and the large rectangular roof light in the centre of the ceiling. Fitted with an attractive slatted feature wall that co-ordinates with the living room, as well as the stylish bespoke window shutters, this is another room of well balanced proportions that joins with the other living rooms in making this house so flexible and adaptable.
Many of the rooms are completely interchangeable in how they are used allowing the house to continue to meet your needs regardless of how they might change over time, and that is before one takes into consideration the stunning office/studio, a comprehensively specified room of almost sixteen feet in length that is also able to perform a multitude of different functions for you. Office, arts and crafts studio, home gym, games room, additional guest bedroom, teenage hangout space - the list is almost endless.
Upstairs are four good sized bedrooms, with two of them fitted with creative and innovative sleeping platforms that bring a stylish, contemporary way of increasing floor space and storage. The principal bedroom has modern fitted wardrobes and a large en suite bathroom that includes a bath with shower attachment and screen. The other bathroom is also blessed with a full bath with a shower and screen fitted above it. All of the bedrooms have the welcome benefit of air conditioning.
Exterior:
The front garden has been neatly landscaped to provide attractive terraces that each have raised beds and low maintenance artificial grass lawns alongside the paved steps leading to the house. To the rear is a fabulous all weather decking terrace that is just perfect for outdoor casual seating and dining, edged by a safety glass balustrade which extends down a short flight of steps to the garden below. Clever use of the space under the decking has generated a useful storage area for toys and garden furniture. The garden is a good size with raised flower beds along two sides and a lovely pergola in the corner, perfect for a hot tub/jacuzzi. High quality, minimum maintenance artificial grass has been laid throughout, giving a practical surface for children to play on, along with easy access to the separate office/studio. The garden is completely secure and enclosed and so is ideal for pets and children.
Location:
This property is perfectly located in the ever popular Welwyn Garden City, within easy reach of the city centre with its extensive shopping areas, restaurants, bars and mainline railway station, from which regular and frequent services run north and south. London is an easy commute, with Kings Cross station just 25 minutes away. It also benefits from being close to all other local amenities including the Gosling Sports Centre, doctors, dentists and renowned schooling for all ages. Despite its residential location it remains within easy access of the motorway network via the A1(M).
Buyers Information
In order to comply with the UK's Anti Money Laundering (AML) regulations, Bryan Bishop and Partners are required to confirm the identity of all prospective buyers once an offer being accepted. We use a third party, Identity Verification System to do so and there is a nominal charge of £48 (per person) including VAT for this service.




























