Property Features
Canonsfield Road, Welwyn, AL6 0QH
Contact Agent
Welwyn6a High Street
Welwyn
AL6 9EG
Tel: 01438 718877
info@bryanbishop.co.uk
About the Property
Summary:
Bryan Bishop and Partners are delighted to bring to the market this outstanding two/three bedroom, two bathroom detached family home in one of the most prestigious roads in the highly desirable Oaklands area of Welwyn. This enchanting property sits modestly within a very large plot, yet the interior is deceptively spacious and skilfully designed to present flexible and adaptable living space that would comfortably embrace the option of a ground floor bedroom, ably supported by an adjacent ground floor shower room. The grounds are beautifully laid out and immaculately maintained, with a generous carriage drive to the front providing substantial parking, and expansive rear gardens that are just exquisite, with extensive landscaping of the very highest quality combining effortlessly with an extremely talented horticulturist to provide a cornucopia of different areas to explore and enjoy. This is already a wonderful family home, but also offers an extremely rare opportunity to seize the full benefit of the superb location and develop the property further subject to the usual consents.
Accommodation:
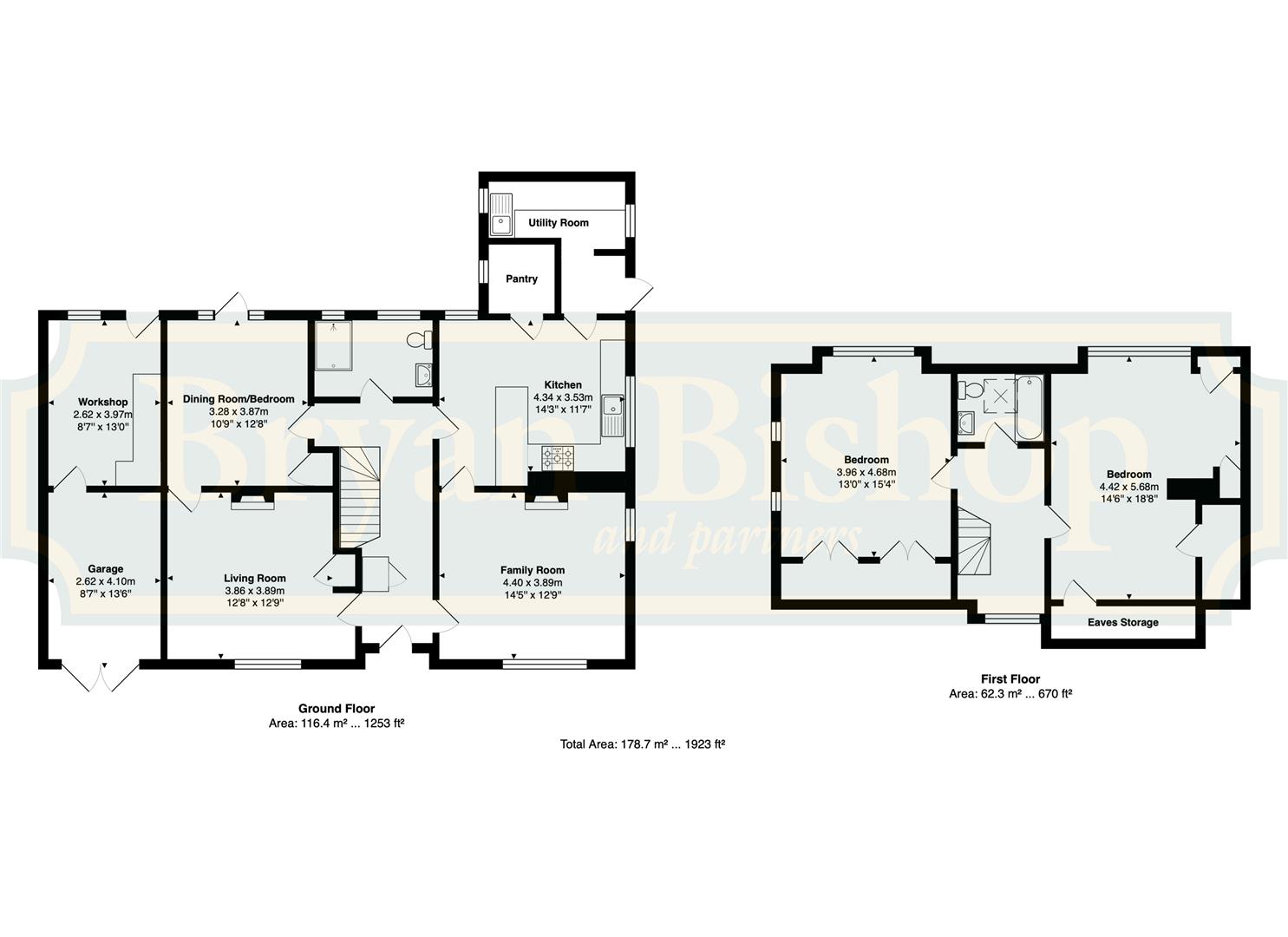
The pretty front door is flanked by opaque full height windows and set within a tiled roof porch with glass block panels either side, offering great weather protection yet keeping the area well lit. Inside is an elegant ‘L’ shaped entrance hall that extends back through the house and then turns to pass across the rear of the attractive staircase as it curves stylishly up to the large hallway above. The front facing windows join with two inset glass panels within the door to keep the entrance hall a light, bright space, further assisted by the natural daylight that cascades unhindered down the stairwell from the front facing window in the upper hallway.
- Desirable Oaklands location
- Large landscaped garden
- Flexible living space
- Ground floor bedroom
- Plenty of off-street parking
- Walk to Oaklands School
Property Details
From the entrance hall there is direct access to each of the ground floor rooms, being the family room, kitchen/breakfast room, living room, dining room/bedroom three and the really useful ground floor shower room which doubles up perfectly as a well placed guest cloakroom. The central position of the entrance hall establishes a wonderful, easy flow around the property, which is further enhanced by additional interconnecting doors between many of the individual rooms, maximising the usability of the whole floor during day to day family life and particularly when entertaining visitors.
The family room enjoys well generous yet balanced proportions and is abundantly lit by separate windows to the front and side aspects, with an elegant ceiling rose and cornices coordinating perfectly with the classically styled fire surround that houses a traditional cast iron open gas fuel fireplace. This is a lovely room that works well together with the similarly sized living room and dining room to offer complete interchangeability, offering myriad opportunities to configure and furnish each of them according to your specific needs. Currently giving exemplary service as a family room, living room and a separate dining room, they could be swapped into any role you wish, or any one of them could be redeployed as a substantial and well situated ground floor bedroom. So many choices are on offer, and this superb property will excel whichever option you select, remaining adaptable to change with you as your family’s needs change over time.
To the rear of the family room, with direct access from it and from the entrance hall, is the superb kitchen/breakfast room. This is another room that enjoys a nice square shape, giving ample space for extensive wall and floor mounted fitted cupboards to line the perimeter whilst still leaving plenty of free space for a dining table and chairs. Again windows to two aspects present lovely views out into the garden whilst allowing the light to flow in, which permeates throughout the room thanks to the light coloured floor tiles and the almond white cabinets. There is more storage than you are ever likely to need, boosted further by a terrific walk-in pantry, with gorgeous solid wood worktops stretching out onto a useful island offering a lovely warm colour highlight that contrasts perfectly with the colour of the curved front cupboards beneath. Integrated within the cabinets is a comprehensive collection of premium branded appliances. From the corner of the kitchen/breakfast room a door leads into an inner lobby area that opens out through an external door into the rear garden, and also opens directly into a fantastic utility/laundry room at the rear, fully specified for a washing machine and dryer, and boasting fitted cupboards and worktop matching those of the main kitchen.
Across the hallway from the family room is the large living room. The room is stylishly appointed with ornate cornices and a lovely ceiling rose that matches the family room, and enjoys a large picture window overlooking the front garden. It is again a nicely balanced, square space that invites you to configure and furnish it however you wish, with an open fireplace set into the rear wall that has been remodelled as a recess perfect for a decorative display, along with a useful full height cupboard set into the adjacent wall.
Linking directly from the living room is the rear facing dining room, which also has a door opening directly to the rear of the entrance hall. There is ample space for a substantial dining suite and other occasional furniture besides, with a useful built in cupboard in one corner, and the room opens out directly into the rear garden through a fully glazed door that is flanked by two full-height sets of windows, allowing the light and the wonderful garden views to flow in undiminished. This is another wonderful room that joins with the others on the ground floor to really illustrate the incredible flexibility of this spacious home.
The central part of the rear of the house is occupied by a really useful shower room, ideally placed to service a ground floor bedroom should you decide to establish one, but also multi-tasking perfectly as a guest cloakroom.
Upstairs the generous hallway is a light and airy space thanks to the front facing window, and opens into the two bedrooms and the family bathroom. Both bedrooms should be considered as bedroom suites, with ample space for casual seating and other furniture as well as king size beds. Both have built-in wardrobes/cupboards with one of them boasting delightful banquette seating running along below the dormer window. It would be incorrect to describe either of them as the principal bedroom, they are both completely fabulous.
Exterior:
The house is set well back from the road with a large gravel driveway that leads up to the integral garage before sweeping past the front of the house and back out to the roadway through a second entrance. Large mature hedges line both side boundaries, with a pretty lawn in the centre set behind further mature hedging that offers a nice visual screen from the roadway beyond. The garage opens through a rear pedestrian door into a generous workshop some thirteen feet long that also has a separate access directly from the rear garden. It would be relatively simple to incorporate the garage and/or workshop into the main living space if required, subject to the necessary consents. There is a useful side gated access from the front into the rear garden, which is secure and enclosed and so is eminently suitable for children and pets. The rear garden is an absolute delight, covering a substantial area and absolutely full of wonderful architectural and landscaped features that present a real visual feast wherever you look. Multiple patios and seating areas are dotted throughout the grounds, with designated areas for greenhouses and sheds along with ornate shaped flower beds, pergolas and archways linked together by a huge variety of stone and block paved pathways, transitioning into an area displaying a circular lawn at its centre that opens on into a “secret” garden at the far boundary with a pond and an area of decking before a charming verandah. The gardens are just exceptional, carefully landscaped and delicately planted with a carefully curated variety of plants, shrubs, bushes and specimen trees to create an hour oasis of delight and wonder. A perfect place to relax, unwind and enjoy the company of friends and family.
Location:
This wonderful family home is located within the highly sought after Oaklands area of Welwyn, which provides a range of local shops and an excellent primary school within a short walk. Just a few minutes' drive away are the nature reserves of Mardley Heath and North Pit as well as the Danesbury Park open space. Welwyn village is less than a mile away, justifiably highly regarded for its range of shops, amenities and excellent gastro-pubs and restaurants. The A1(M) is just over a mile away and a fast, frequent train service from Welwyn North station will get you to London Kings Cross in around 20 minutes.
Buyers Information
In order to comply with the UK's Anti Money Laundering (AML) regulations, Bryan Bishop and Partners are required to confirm the identity of all prospective buyers once an offer being accepted. We use a third party, Identity Verification System to do so and there is a nominal charge of £48 (per person) including VAT for this service.



































