Property Features
Canonsfield Road, Welwyn, AL6 0QA
Contact Agent
Welwyn6a High Street
Welwyn
AL6 9EG
Tel: 01438 718877
info@bryanbishop.co.uk
About the Property
Summary:
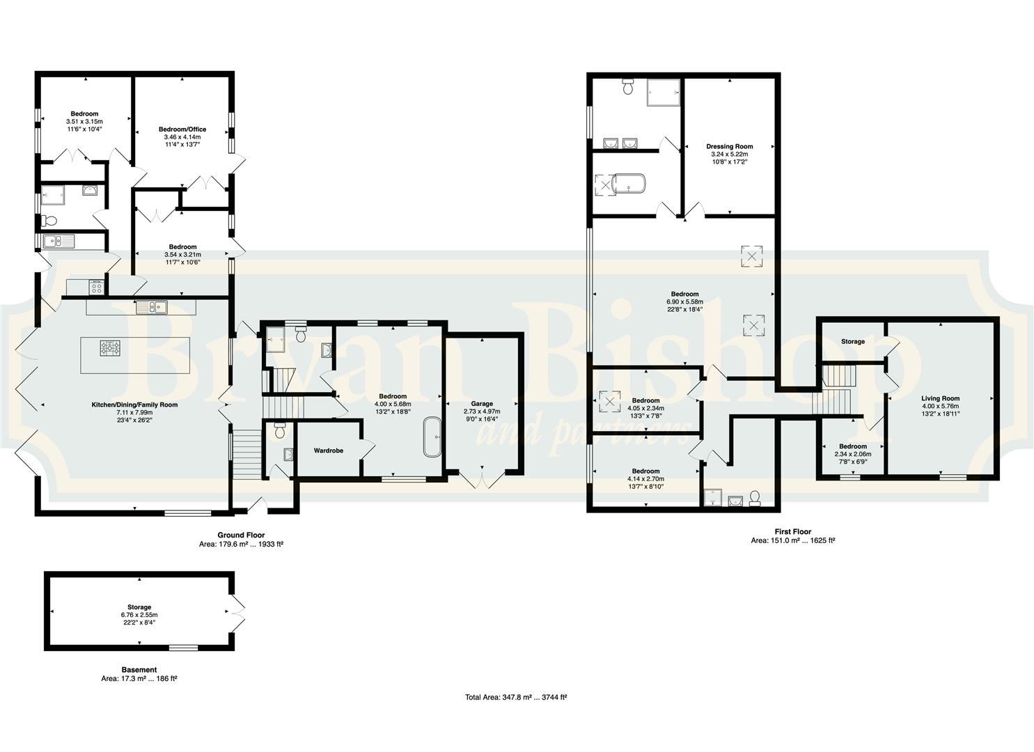
Bryan Bishop & Partners are delighted to bring to the market this exceptional eight-bedroom, four-bathroom detached family home set along one of the most popular roads within the highly desirable Oaklands area of Welwyn. Enjoying a large private plot, with a stunning terrace overlooking the heated swimming pool, making the absolute best use of the south west facing garden, this outstanding property has more than generous accommodation that enjoys an appealing split level arrangement, meaning the individual bedroom suites benefit from excellent privacy yet remain well connected to the day to day living rooms. The gorgeous principal bedroom suite occupies pretty much the whole of the top floor, with a full height window overlooking the garden and pool as it reaches up into the open pitch of the roof. The clever design of the layout would allow an easy segregation of some of the rooms to provide an annexe that would be ideal for a family member needing some support and social contact but wishing to live a semi-independent life. There is more than ample parking on the long driveway, along with an attached garage to the rear.
Property Details
Accommodation:
The front door has a neat protective tiled roof extending out above it and opens into a smart entrance hall that runs the full depth of the house, with an external door into another garden at the far end. The hallway is kept light and bright by the fully glazed double doors and two windows that open into it from the rear of the kitchen/dining/living room. As well as direct access to the kitchen/dining/living room the entrance hall has stairs up to a further living room, stairs down into one of the bedroom suites and a door into the well-placed guest cloakroom.
The adjoining bedroom suite is superb and comfortably large enough for a king size bed and casual seating if so desired. Multiple windows to the front and rear allow the light to flood in, and the room boasts a separate dressing room and a very cool bathing area in the corner with a free-standing designer bath, ably supplemented by an en-suite shower room.
The kitchen/dining/living room is an absolute triumph of modern design, seamlessly encompassing the three different roles in a multi-functional space full of style and elegance. Windows in three separate aspects keep the whole room bathed in natural light at all times of the day despite its capacious size, with the star of the show being the full width bi-fold doors that open the whole of the front of the room, establishing a smooth connection out into the beautiful sun terrace beyond that overlooks the pool and the extensive patio area that surrounds it. One end of the room is allocated to the working kitchen area and has a comprehensive array of wall and floor mounted cabinets fitted along the perimeter, providing all the storage and worktop area you will ever need in a chic, stylish design. Further enhancing both aspects is a substantial island, which includes a generous breakfast bar. Integrated within the cabinets is a full complement of premium branded appliances, including multiple ovens, a wine cooler and gas hob with in-built extractors above, just as you would expect in a house of this size and exceptional quality. The remainder of the room is left as open floor area, giving you myriad options as to how you configure and furnish the space. With an overall room size of well over six hundred square feet, rest assured that it will comfortably accept multiple sofas, chairs and other occasional furniture as well as a large dining suite, still leaving ample space for an easy flow in, through and around the room. This is an exceptional living space that is sure to become the hub and heart of this wonderful family home, with the bi-fold doors adding another layer of practical usability and enjoyment whatever the time of year.
From the front corner of the kitchen area a door leads through into a suite of rooms that perfectly illustrate the incredible flexibility and adaptability of this fabulous home. Fully connected to the main house and easily usable as additional rooms of the main house, they could also be put together as a semi-private annexe, with even a separate entrance if needed. There is a kitchen, which could alternatively be a utility/laundry room, a good-sized gym and an office/study, both of which have access directly out onto a charming terrace running along the rear of the house.
Additionally, there is a double bedroom complete with fitted wardrobes and a shower room. The rooms all work well as a wing of the house but provide a valuable option that would effectively support multi-generational family living if so required.
Up a short flight of stairs from the entrance hall is another living room, offering generous, well-balanced space within a more private and secluded setting. Again, the flexibility shines through, with this room offering scope to take on many other roles such as a games room, cinema room, teenage hang out or playroom. However you use it, it is a great family room with an attractive, well-balanced layout and plenty of natural light flowing in through the large window.
From the corner of the living room there is a walk-in storage room currently used as a wine store, and on the same level is a further bedroom.
Another short flight of stairs leads up from the living room to the top floor, on which is two double bedrooms, additional family bathroom and the breathtaking principal bedroom suite. The principal bedroom itself extends to over twenty-two feet in length with multiple Velux windows adorning the sloping roof at the rear, whilst the front wall is dominated by a spectacular set of full height windows that extend up into the vaulted ceiling space. There is a separate walk-in dressing room and an en-suite shower room complete with twin sinks and separate bathroom. This arrangement is very special indeed, providing a unique experience that elevates this extraordinary home far above its peers.
Exterior:
The large plot is afforded complete privacy by a mature and substantial hedge along the front boundary with a secure gated driveway access. The drive extends the full depth of the grounds, providing substantial parking as it does so, before reaching the attached garage at the rear of the house. The rear garden is a nice lawned space with mature trees, bushes and shrubs, with direct access into it from the door at the rear of the entrance hall, overlooked by a delightful terrace that has doors out onto it from the office/study and the gym. The front garden is a large space, with a substantial paved area flowing around the impressive, heated swimming pool, doing a wonderful job of trapping the sun in the southwest facing grounds. Above the pool area is a spacious terrace of all-weather decking that stretches across the full width of the kitchen/dining/living room, seamlessly connecting into it through the expansive bi-fold doors before merging into an area of lawn that sweeps around to the front boundary. The upper terrace is easily large enough for multiple sets of generously specified casual seating and dining furniture, presenting a glorious opportunity for relaxing together as a family or for entertaining any number of lucky guests.
Location:
This wonderful family home is located within the highly sought after Oaklands area of Welwyn, which provides a range of local shops and an excellent primary school within a short walk. Just a few minutes' drive away are the nature reserves of Mardley Heath and North Pit as well as the Danesbury Park open space. Welwyn village is less than a mile away, justifiably highly regarded for its range of shops, amenities and excellent gastropubs and restaurants. The A1(M) is just over a mile away and a fast, frequent train service from Welwyn North station will get you to London Kings Cross in around 20 minutes.
Buyers Information
In order to comply with the UK's Anti Money Laundering (AML) regulations, Bryan Bishop and Partners are required to confirm the identity of all prospective buyers once an offer being accepted. We use a third party, Identity Verification System to do so and there is a nominal charge of £48 (per person) including VAT for this service.


































