Property Features
Lemsford Village, Lemsford, Welwyn Garden City, AL8 7TR
Contact Agent
Welwyn6a High Street
Welwyn
AL6 9EG
Tel: 01438 718877
info@bryanbishop.co.uk
About the Property
Summary:
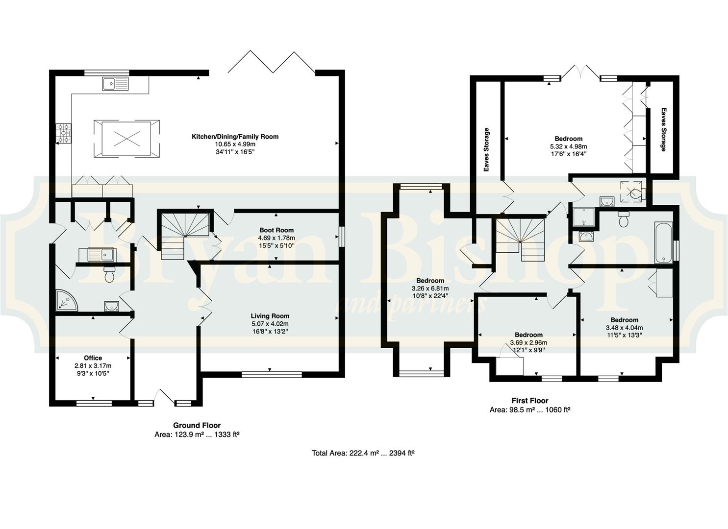
Bryan Bishop and Partners are delighted to bring to the market this outstanding four double bedroom, three bathroom detached house in the lovely Hertfordshire village of Lemsford. The property enjoys a very large plot with substantial and secure gated parking to the front and stunning views out over open countryside to the rear, benefiting from a wonderful rural position yet within easy reach of the comprehensive facilities and amenities in nearby Welwyn Garden City. The house is totally immaculate inside and out, with a clean, modern interior that clearly exhibits the absolutely top drawer craftsmanship and materials that are so clearly evident throughout. All your family’s needs are provided for, with a separate office/study and utility/laundry room, a stunning open plan kitchen/dining/family room that links directly out onto the spacious rear patio through large bi-fold doors, a substantial walk-in larder/storeroom and a really useful ground floor shower room.
Property Details
Accommodation:
This is an attractive house, with a modern front door inset with multiple glass panels and flanked by full height opaque windows either side, opening into a substantial reception hall. Neat styling details abound in this immaculately detailed house, and this starts in the reception hall which, along with most of the ground floor rooms, has a neatly recessed ceiling design that incorporates concealed lighting around the border. It brings a wonderful ambience to the house, which joins with the light coloured décor to really elevate the light levels throughout the day. From the hallway doors open into the generous office/study and the rear facing kitchen/dining/ family room, whilst glazed double doors access the sitting room.
The office/study is a really good size and shape, making it easily capable of accepting multiple workstations and other storage furniture and providing a comprehensive work from home facility. Its great size and situation also lend it to performing equally well in any number of other roles for you if so required. Playroom, TV room, craft room, home gym - the list is almost endless. However you use it, it is a real asset and underlines the flexibility and adaptability of this superb family home. Across the hallway the front corner of the house is taken up by the sitting room, another room of generous and nicely balanced proportions with concealed lighting around the elegant centrally recessed ceiling. A large set of picture windows overlooking the front garden keep the room light and bright, ably assisted by the glazed double doors opening in from the reception area, with the abundant usable space within the room opening up myriad possible options as to how you configure and furnish it. Certainly it is large enough for multiple sofas and chairs, and other occasional furniture besides, and it works splendidly in partnership with the open plan format of the kitchen/dining/family room to offer a nice blend of different rooms to cater for all your family’s needs, now and in the future.
At the entrance from the hallway into the rear facing kitchen/dining/family room is a well specified utility/laundry room, providing able support to the already expansive kitchen as well as a useful external door out into the rear garden and access into a valuable ground floor shower room, which also doubles up perfectly as a well placed guest cloakroom.
The kitchen/dining/family room is just incredible. A real design triumph that creates a wonderful family hub within this beautiful home. It is a large room by any standards, being a little under thirty-five feet long and a full twenty-one feet wide, but it allows all of the multiple roles to be effectively and comfortably fulfilled whilst still leaving a nice easy flow through and around each different space. The natural daylight floods in unhindered through the five panel folding glass doors that virtually fill the rear wall, joining the roof light and additional picture windows in the kitchen area to keep the room light and airy whatever the time of day, whilst at the same time filling the room with the stunning views of the open countryside that flow along the large garden off to the distant woodland beyond. One end of the room has been neatly defined as the working kitchen area and is fully fitted with a comprehensive array of wall and floor mounted cabinets in a stylish two tone finish, equipped with led lighting above and beneath the wall units. This is a premium quality installation with abundant storage and more than ample food preparation worktop areas, supplemented by a fabulous central island that incorporates a wine cooler, a large breakfast bar and a cool in every sense of the word open wine chiller set into the top. Integrated within the cabinets is a full complement of all of the appliances any family might possibly need, all of which have been selected from the very best manufacturers. The remainder of the capacious room is left open for you to choose the proportions you wish to allocate to the family room and dining room, and of course giving you ongoing freedom of choice to flex that ratio as your needs develop and change over time. Rest assured this room will meet your needs whatever they may be, with space for multiple large sofas and chairs as well as a substantial dining suite easily accommodated, and the bi-fold doors will give you an easy flow between the inside and outside. Great for maximising use of the large patio on a day to day basis, and a truly wonderful facility when entertaining family and friends.
From the inner wall of the room is a doorway through to a further walk-in pantry/larder/storage room, which is lit by its own side facing window and could easily take on an alternative role if you so wished, maybe as an office/study, playroom or something similar.
Upstairs is a smart landing, with modern glass infill panels arranged in a gallery around the stairwell, which leads into each of the four bedrooms and the family bathroom, which has a bath fitted with a shower and screen above it. Each of the bedrooms is a comfortable double in size, and each of them benefits from built in cupboards. The principal bedroom also boasts a superb en-suite shower room and a glass fronted Juliet balcony outside the full height French doors overlooking the extensive rear garden and open fields beyond.
Exterior:
The house is set well back from the road, allowing a substantial frontage that is suitable for a large number of cars and includes a secure gated front entrance from the roadway outside. There is useful direct access through a secure gate from the front to the rear garden. At the rear of the house there is a very large paved patio that extends across the full width of the garden, shaped to make a perfect area for al fresco dining and seating immediately outside the extensive bi-fold doors leading out from the kitchen/dining/family room. There is a wonderful integration between the outside and inside spaces, making this a lovely house for spending time together as a family and for welcoming guests to join you. The garden is substantial and enjoys a superb open aspect all around, with a further patio area at the far boundary, meaning there is always an option for sun or shade in these beautiful tranquil surroundings.
Location:
This property is perfectly located in the rural village of Lemsford adjacent to the much favoured west side of Welwyn Garden City, enjoying a countryside location yet within a few minutes of the city centre with its popular shopping areas, restaurants, bars and mainline railway station, from which regular and frequent services run north and south. London is an easy commute, with Kings Cross station just 25 minutes away. It also benefits from being close to all other local amenities including the Gosling Sports Centre, doctors, dentists and renowned schooling for all ages. Despite its residential location it remains within easy access of the motorway network via the A1(M).
Buyers Information:
In order to comply with the UK's Anti Money Laundering (AML) regulations, Bryan Bishop and Partners are required to confirm the identity of all prospective buyers once an offer being accepted. We use a third party, Identity Verification System to do so and there is a nominal charge of £48 (per person) including VAT for this service.























